Get er' done!
This is a very exciting commercial project for the City of
Poughkeepsie and Bell Engineering, PLLC (BE). We are
currently acting as lead Consulting Engineer for the
development of a 12.5 acre waterfront development
project located directly adjacent to the Hudson River.
Delaval Waterfront Development
click image for detail
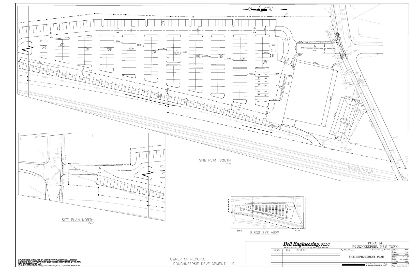
Pura 14
Another large project located within the City of
Poughkeepsie is the PURA 14 development project. This
project is 5.5 acres in size and slated for a 10 story mixed
use building totaling 120,000 plus square feet. BE is currently
lead Consulting Engineer on this project as well, developing
preliminary site plans for presentation to the City.
click image for detail
Dunkin' Donuts
BE is currently preparing the Site Grading, Drainage &
Erosion Control Plan for the newest Dunkin' Donuts located
in New WIndsor, NY.
click image for detail
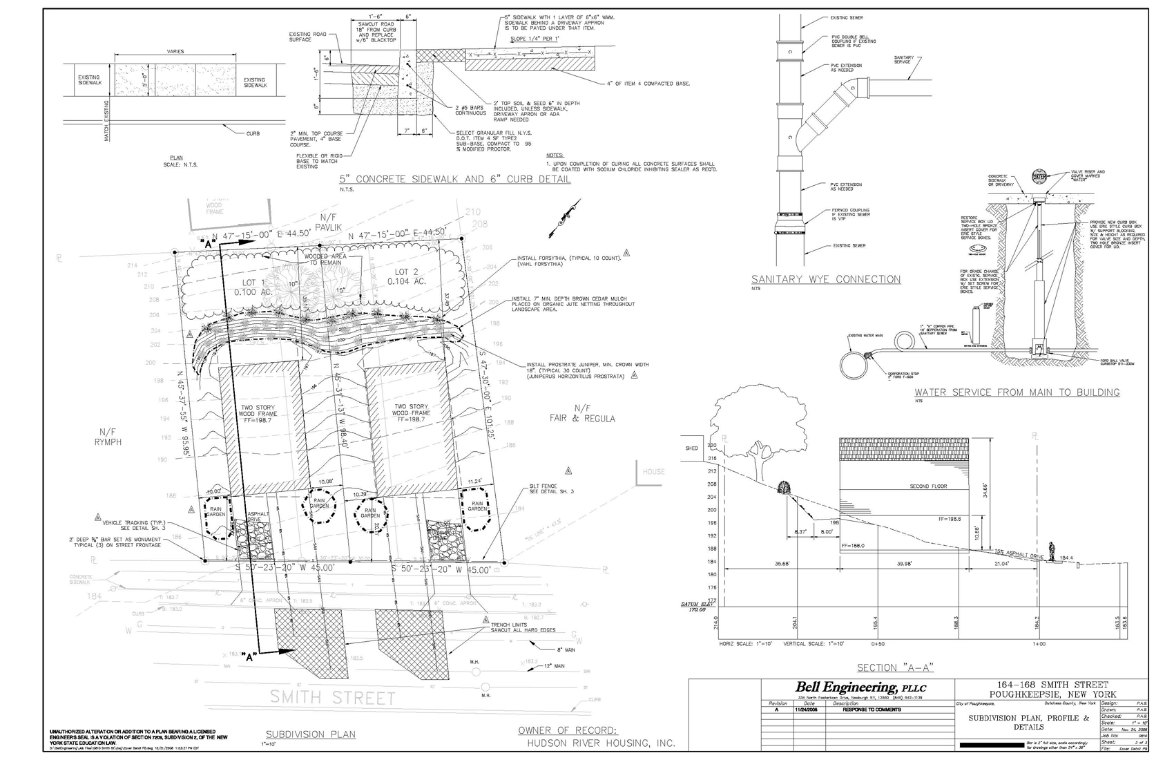
164-168 Smith Street
BE is currently the engineer for Hudson River Housing, a not
for profit, publicly funded organization providing housing
for low income households. This project involves a two lot
subdivision and site plan approval for two single family
residences.
click image for detail
Current Development Projects
Engineers Reports
Bonefish Grill
BE has contracted with Outback Steakhouse Inc. to develop
a Sanitary Sewer study identifying the source of sewer
odors in the area. This study was prepared for the Bonefish
Grill located in Fishkill, NY.
Remediation Projects
A.C. Dutton Lumber
BE currently the Project Engineer involved with the Project
Workplan and Final Engineer's Report for a $6 Million
waterfront remediation project, paving the way for a 600
unit condominium complex.
Specializing in:
- Commercial Site Development
- Municipal Infrastructure Design
- Remedial Engineering
Complete Consulting Engineering  Services
Current Projects
Prospect Court
This project involves remedial cleanup of an existing gas
station location located in the Bronx. Paving the way for an
apartment building.